Das Simply Dachgeschoss XL bietet viel Raum für Familie und Alltag – mit einer klaren Aufteilung und clever genutzten Wohnflächen. Der große Wohn-/Essbereich im Erdgeschoss bildet das Herzstück des Hauses, während im Dachgeschoss mehrere Schlafzimmer und Rückzugsorte entstehen. Ideal für alle, die ein großzügiges Zuhause mit durchdachter Struktur suchen.

Simply Dachgeschoss XL
3-Kinder
Abstellraum
Ankleide
Arbeitszimmer
DG
EG
Einfamilienhaus
Elternbadezimmer
Garderobe
Gäste-WC
Kinderbadezimmer
Satteldach
Simply Home
Speis
Wendeltreppe
zusätzliche Dusche/WC
Architektur & Raumerlebnis
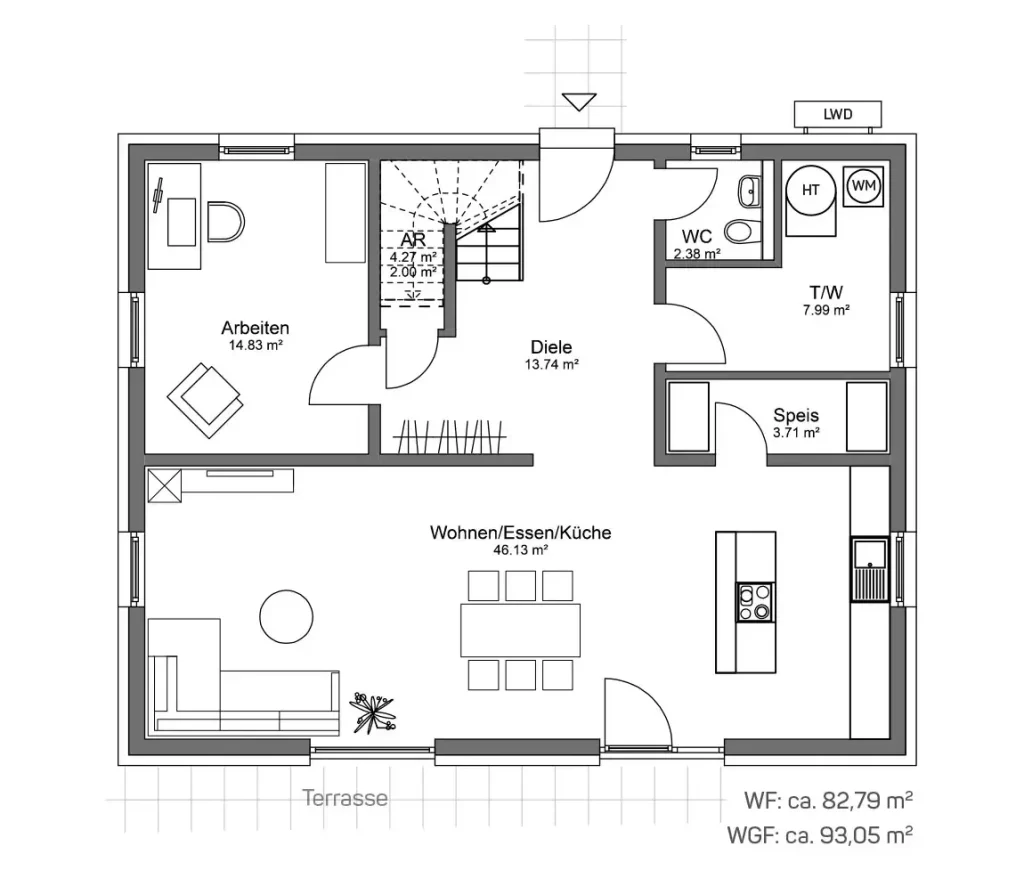
Im Erdgeschoss bildet der offene Wohn-, Ess- und Kochbereich den Mittelpunkt des Hauses. Hier entsteht ein großzügiger Lebensraum, der Kochen, gemeinsames Essen und Wohnen fließend miteinander verbindet – ideal für Familienmomente und Gäste. Die Küche ist harmonisch integriert und wird durch praktische Nebenflächen ergänzt, die für Struktur im Alltag sorgen. Ein separates Arbeitszimmer bietet zusätzliche Flexibilität, ob als Homeoffice, Gästezimmer oder persönlicher Rückzugsraum. Gäste-WC und Hauswirtschaftsbereich runden das Erdgeschoss funktional ab und halten die Wohnräume angenehm aufgeräumt.
Im Dachgeschoss zeigt sich die familienfreundliche Stärke des Hauses besonders deutlich: Drei gut geschnittene Kinderzimmer bieten viel Platz für Entwicklung, Spielen und eigene Freiräume. Der Elternbereich ist bewusst als ruhige Wohlfühlzone gestaltet und wird durch eine Ankleide ergänzt. Zwei Bäder – darunter ein zusätzliches Duschbad – sorgen für Komfort und entspannte Abläufe, gerade in den typischen Morgenstunden, wenn alle gleichzeitig starten.
So vereint das SIMPLY Dachgeschoss XL moderne Offenheit, klare Grundrissplanung und großzügige Familienqualität zu einem Zuhause, das flexibel mit dem Leben mitwächst – hell, durchdacht und rundum stimmig.
Pluspunkte
- 2 Bäder (Bad + Dusch-WC)
- Ankleide im Dachgeschoss
- Gäste-WC im Erdgeschoss
- Offener Wohn Ess Kochbereich
- 4 Schlafzimmer insgesamt
- Arbeitszimmer im Erdgeschoss
- Hauswirtschaftsraum vorhanden
- Speisekammer vorhanden
Highlights aus der Leistungsbeschreibung

Eine luftdichte Gebäudehülle ist entscheidend für Energieeffizienz, den Schutz vor Bauschäden und die Vermeidung von Zugluft. Deshalb wird bei Büttner Massivhaus – zusätzlich zur gesetzlich vorgeschriebenen Messung nach Fertigstellung – eine weitere Luftdichtheitsprüfung bereits während des Innenausbaus durchgeführt.
So kann die luftdichte Ebene präzise überprüft, Leckagen frühzeitig erkannt und eine außergewöhnlich hohe Bauqualität sichergestellt werden.

Mit homematic IP lassen sich elektrisch angetriebene Rollläden oder Raffstores bequem per App steuern. Steuerbare Raumthermostate sind inklusive und ermöglichen eine intelligente Regelung der Raumtemperatur.
Automationen sorgen dafür, dass sich Ihr Zuhause Ihren täglichen Abläufen anpasst.
Die Beschattungs- und Heizungssteuerung ist zentral auf Smartphone oder Tablet verfügbar und flexibel erweiterbar, z. B. um Lichtsteuerung.

Das Aufhebeln von Fenstern mittels Schraubenziehern oder ähnlichen Werkzeugen ist die häufigste Einbruchsmethode. Das Büttner-Sicherheitspaket setzt genau hier an: Die umlaufende Pilzkopfverriegelung erschwert das Aufhebeln von Fenstern sowie Balkon- und Terrassentüren deutlich und trägt so aktiv zum Einbruchschutz bei. Ein abschließbarer Fenstergriff, der einer Druckbelastung von 100 Nm standhält, rundet das Büttner-Sicherheitspaket wirkungsvoll ab.

Innovative Elektroausstattung inklusive Rauchmeldern, einem umfangreichen Grundpaket an Steckdosen und Schaltern in allen Räumen sowie TV/SAT-Anschlüssen und Netzwerkvorbereitungen gehören bei uns zum Standard. In einem Büttner Massivhaus stehen Ihnen hochwertige Schalterprogramme renommierter Hersteller – wie z. B. Gira, Busch-Jaeger, Jung u. a. – zur Wahl.

Ihr Büttner Massivhaus wird mit einer monoenergetischen Luft-Wasser-Wärmepumpe für die Außenaufstellung ausgestattet, z. B. von alpha innotec (Serie Hybrox).
Eine Hydraulikstation mit Heizungsregler Luxtronik und integriertem Brauchwasserspeicher (ca. 180 Liter) sorgt für effiziente Wärme- und Warmwasserversorgung. Die Anlage ist Smart-Grid-Ready. Die Fußbodenheizung im Klettsystem verteilt die Wärme gleichmäßig in allen Aufenthaltsräumen.

Es kommen ausschließlich hochwertige Schüco-Markenfenster des Typs LivIng zum Einsatz. Mit modernsten 7-Kammer-Stockrahmenprofilen, „warmer Kante“ und hochwärmedämmender Dreifachverglasung sind diese Fenster energetisch auf einem Top-Level. Dank eines Ug-Werts von 0,5 W/m²K erfüllen sie die hohen Anforderungen an Effizienz und Wohnkomfort.

Für alle, die noch mehr Effizienz und technische Optimierung wünschen: Durch den Einsatz von porosierten Leichthochlochziegeln und einer weiterentwickelten, hochwärmedämmenden Gebäudehülle entsteht ein besonders energieeffizientes und nachhaltiges Zuhause. Diese innovative Bauweise verbessert das Raumklima, reduziert Wärmeverluste und macht Ihr Haus fit für zukünftige energetische Anforderungen. Ein Büttner Massivhaus erfüllt damit nicht nur das GEG, sondern erreicht mühelos den ehemaligen EH-55 Standard.

Massiv bleibt Massiv – auch in 100 Jahren. Mit bewährtem Hochlochziegelmauerwerk und einer sinnvoll wärmegedämmten Gebäudehülle entsteht ein solides, langlebiges Zuhause. Diese Bauweise steht für Stabilität, Wohnkomfort und ein ausgewogenes Raumklima. Ein Büttner Massivhaus erfüllt damit nicht nur das seit 01.01.2023 verschärfte GebäudeEnergieGesetz (GEG), sondern erreicht zugleich den ehemaligen EH-55 Standard.

Die Architekten- und Planungsleistungen sind bei Büttner Massivhaus bereits im Festpreis enthalten. Dazu zählen durchdachte und funktionale Grundrisse, Perspektiven oder virtuelle 3D-Modelle, Bauantragspläne sowie Ausführungs- und Detailpläne. Auch die sorgfältige Bauleitung ist inklusive und sorgt für eine unkomplizierte und transparente Bauabwicklung.
NEHMEN SIE MIT UNS
KONTAKT AUF
Telefon: 09244 / 98 282-0
Fax: 09244 / 98 282-20
E-Mail: info@wb-buettner.com








